Investment, For Sale

Units 21A, 21B, 21C, 21D plus Yards 6 & 7, Shifnal Industrial Estate, Lamledge LAne, Shifnal, Telford, Shropshire, TF11 8SD.

For improved printing, please use the print button on the property page.

Details

Property Reference

AGS/4156

Address

Units 21A, 21B, 21C, 21D plus Yards 6 & 7, Shifnal Industrial Estate, Lamledge LAne, Shifnal, Telford, Shropshire, TF11 8SD.

Location

The property is situated within the established Shifnal Industrial Estate, which lies in the hearth of Shifnal and is a key commercial hub in the town. The estate offers easy access vial Lamledge Lane, placing it in close proximity to a range of local amenities and transport links.

The surrounding area is home to a variety of commercial and industrial occupiers. Additionally, the estate benefits from its strategic location next to Granite Self Storage.

The property benefits from excellent road links to the West Midlands and beyond, being located approximately 4 miles from the M54 motorway, which connects to the M6 and M1.

Shifnal benefits from a growing local economy and Shifnal Industrial Estate itself offers both current and future occupiers the opportunity to be part of this and a rapidly expanding hub.

Description

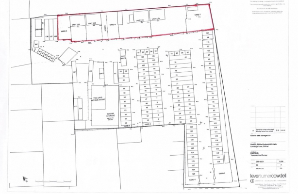
Rare opportunity to acquire a multi-let commercial investment located at Shifnal Industrial Estate. The property comprises four well-positioned industrial units and two commercial yards. The property is fully income-producing, with a current net passing rent of £51,052 per annum providing a secure investment option.

The units vary in size from 504 square feet (46.82 square metres) to 572 square feet (53.13 square metres) and benefit from roller shutter access and eaves heights of 3.4 metres.

The property is offered for sale subject to the existing occupational leases, ensuring a steady income stream. With its strong rental performance, this property represents an excellent addition to any commercial investment portfolio.

Get directions to this property:

Units 21A, 21B, 21C, 21D plus Yards 6 & 7, Shifnal Industrial Estate

Detailed Specification

  • Size

    2,134 sq ft plus yard space of 0.37 ac
  • Price/ Rent

    Asking price £480,000 exclusive
  • Accommodation

    Unit 21A504 sq ft46.82 sq m
    Unit 21B572 sq ft53.13 sq m
    Unit 21C536 sq ft49.79 sq m
    Unit 21D522 sq ft48.49 sq m
    Total Floor Area GIA2,134 sq ft198.23 sq m
    Yard 60.32 ac0.13 ha
    Yard 70.05 ac0.02 ha
  • Services

    We understand that mains water and electricity are connected to the property. It should be noted that we have not checked or tested these services and interested parties should make their own enquiries. In addition, the property has shared use of WC facilities serving Shifnal Industrial Estate as a whole.
  • Planning

    The property is well-suited to a variety of commercial uses. Prospective parties are advised to make their own enquiries with the Local Planning Authority.
  • Tenure

    The property is offered for sale on a long leasehold basis on a 299 year lease from completion at a ground rent of £500 pa. The asking price is £480,000 excl. reflecting a net initial yield of 10.94% after standard purchaser costs. The property is offered subject to the existing occupational leases - please refer to marketing brochure for Tenant Summary.
  • Service Charge

    There is a service charge liability for the maintenance of Shifnal Industrial Estate as a whole, currently running at £1,440 pa. Please contact the agent for further details.
  • Local Authority

    Shropshire Council, Mount McKinley, Shrewsbury Business Park, Anchorage Avenue, Shrewsbury - Tel: 0345 678 9000
  • Rateable Value

    Under the terms of the occupational leases, the owner currently pays the business rates for the units and yard. The units are currently being reassessed for business rates. Prospective purchasers should rely on their own enquiries.
  • Energy Performance Certificate

    The property has an Energy Rating of G.
  • VAT

    All figures quoted are exclusive of VAT, which may be payable at the prevailing rate. We understand the property is not elected for VAT.
  • Legal Costs

    Each party to be responsible for their own legal costs in connection with this matter.
  • Viewing

    Strictly by prior appointment with the Agent's Telford office:
  • Additional Viewing Information

    Contact: Alex Smith MRICS
    Direct Line: 01952 521007
    Mobile: 07795 275 113
    Email: alex@andrew-dixon.co.uk
    Ref: AGS/4156

Disclaimer:
Andrew Dixon & Company. for themselves and for the vendors or lessors of this property whose agents they are give notice: (1) The particulars are set out as a general outline for the guidance of intending purchasers or lessors, and do not constitute, nor constitute part of, an offer or contract. (2) All descriptions, dimensions, references to condition and necessary permissions for use and occupation, and other details are given in good faith and are believed to be correct but any intending purchasers or tenants should not reply on them as statements or representations of fact, but must satisfy themselves by inspection or otherwise as to the correctness of each of them. (3) No employee of Andrew Dixon & Company. has any authority to make or give representation or warranty whatever in relation to this property.

As far as possible, these particulars are intended to give a fair description of the property. Unless otherwise stated, no enquiries have been made of statutory authorities nor tests made of electricity, plumbing or other services installed in the property. No warranties or certificates of building work, leases/title documents have been inspected. Such information as is given in these particulars is based on a purely visual inspection only and information supplied to us by the vendor/lessor. Interested parties must take their own measurements in order to satisfy themselves that the premises are suitable for their own requirements. Our measurements are approximate in order to give an indication of size only. Whilst every care has been taken to prepare these particulars, we would be grateful if you could inform us of any errors or misleading descriptions found in order that we may correct them in our records.